Where Life Sciences Innovation Thrives
Premium lab and office space in Boston’s Southline district
135 William T Morrissey Blvd, Boston, MA 02125
Where Innovation Meets Community
Portal’s lab and office space in Southline, Boston is dedicated to growing biotech and medtech startups in the area. Boston is one of the leading healthcare and life sciences research regions in the world, and Portal’s expansion will help build success for biotech and medtech startups in the region.

Flexible Lab Spaces for Every Stage
Our space includes 160+ benches, 120+ desks, offices, large co-working spaces, and multiple conference rooms โ ideal for biotech and medtech startups. The Portal lab space has over $2 million of modern equipment.
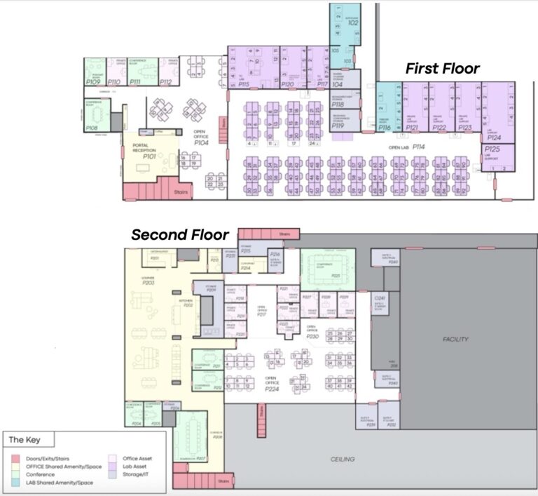
Floor Plans
Detailed Floor Plan
First and Second Floor at Portal Southline
Suite O Floor Plan
Floor plan of our private Suite O space
Suite N Floor Plan
Floor plan of our private Suite N space
Space Types
Individual Bench Space
Dedicated lab bench with equipment access
Private Lab Suites
Enclosed lab spaces for confidential research
Shared Equipment Areas
Access to $2M+ in specialized equipment
Office Space
Professional office areas and meeting rooms
Premium Amenities & Services
Everything you need to grow your life sciences business
Lab Equipment
Office & Collaboration
Building Services
Prime Southline Location
Our Southline location sits steps from the Red Line and I-93, and just 3 miles south of downtown Boston. Hundreds of nearby restaurants, coffee houses, and shops occupy the area, making it neighborhood and commuter friendly.
Join Boston’s Leading Life Sciences Community
Portal’s Southline Labs serves as a destination for startups emerging from local universities. As these companies scale they will also serve as a resource for local talent retention.

Ready to Join Our Community?
Get in touch with our Boston team to learn more about membership opportunities and schedule a tour of our facilities.
Address
135 William T Morrissey Blvd
Boston, MA 02125

